住友林業のプラスカイの特徴!坪単価目安と間取り例・展示場を紹介

平屋のような落ち着きと、2階建てのような開放感。その両方を叶える住まいとして人気を集めているのが、住友林業の「プラスカイ」です。
まだ、発表されてからそれほど時間が経過していない商品ラインのため、プラスカイの名称は知っていても、どのような内容かよくわからない…という方も多いのではないでしょうか。
そこでこの記事では、プラスカイの魅力や間取りの工夫、実際に見学できる展示場まで、住友林業オーナー目線でわかりやすく紹介します!
健太郎これから住友林業の平屋を検討している方は、ぜひ、参考にしてみてください。
以下は、家づくりに便利なサービスのご紹介です。
プラスカイを検討している方の中には、2階建てにしようか、それとも普通の平屋にしようか…まだ迷いを捨てきれていない方も多いと思います。
以下のサービスを活用すれば、その答え合わせができます!
自分に合った間取りプランの提案や、他社の平屋はどんなデザインなのか比較できるため、プラスカイが自分たちにとってベストな選択肢なのかどうか、判断しやすくなるはずです。また、希望するエリアと予算で、プラスカイを建てられるほど余裕のある土地があるかどうかも確認できます。
利用は無料なので、ぜひお気軽に試してみてくださいね!
【PR】


- オリジナルの間取りプランを無料作成!
- 資金計画の提案もしてもらえる
- 土地探しからサポート可能
- 全国1,250社以上の優良住宅会社が登録


- 各ハウスメーカーの特徴をカタログを一括請求可能!
- 住宅メーカーの比較検討がさくっ!とできる
- 家づくりに必要な知識をまとめた「家づくりノート」(PDF)が無料でもらえる


- 家づくりの専門家があなたに合ったハウスメーカーを提案!
- 「専門家」は業界歴10年以上の人材のみ
- 資金シミュレーション・土地情報も教えてもらえる
住友林業のプラスカイの特徴!


住友林業の平屋プランの1つである「プラスカイ」。
「聞いたことはあるけど、どんなのかよくわからない…」そんな方のために、ここではプラスカイならではの特徴を詳しく解説します!
参考元:住友林業「プラスカイ」
平屋で実現できる中2階空間
プラスカイは、住友林業の新しい商品ラインです。
簡単に言ってしまえば、プラスカイとは「中2階空間」のこと!平屋に短い階段を設置し、その先に広がる空間を設けることで、そこを「1.5階のフロア」として活用できます。



さらに、プラスカイはよくある中2階ではなく、そこはやはり住友林業。センスも快適性も抜群です。
太陽光パネルの積載量アップ
プラスカイは、大屋根デザインを採用しています。屋根面積が広くなることで、太陽光パネルの設置スペースも、広く確保が可能です。
日射条件のよい南向きの屋根なら、かなりの量の蓄電が期待できるはず。余った電力を売電して家計をサポートする助けにもなります。
大屋根による外観の高級感


プラスカイの大屋根は、太陽光パネルを設置できるだけではなく、屋根そのもののデザイン性も抜群です!
勾配のある屋根が住まい全体を包み込むようにデザインされており、重厚感があります。
勾配天井で最大4.8mの天井高


プラスカイでは、勾配天井を活かしたダイナミックな吹き抜けを設けることができます。
天井の高さは最大でなんと約4.8m!かなりの天井高を感じることができるので、平屋でありながら開放感もたっぷり味わえます。
中2階には水回りの設置も可能


中2階空間と言うと、デスクや机、ちょっとした子どもの遊びスペース…などのイメージがありますよね。しかしプラスカイの中2階空間は、ほとんど「2階」です。
居住空間として十分に機能できるよう、キッチンやトイレなどの水回りも設置可能になっています。プラスカイの平屋で二世帯住宅を…なんて選択肢も可能です。
建築基準法では2階建になる
中2階と聞くと「平屋扱いになるのでは?」と思われがちですが、建築基準法上は2階建ての扱いになります。そのため、確認申請や固定資産税などの扱いは一般的な2階建と同様です。
ただし、外観デザインや生活動線は平屋に近く、「2階建てと平屋のいいとこ取り」ができるのがプラスカイの魅力でもあります。
住友林業プラスカイのメリット
プラスカイの空間を平屋に加えることで、暮らしにさまざまなメリットが生まれます。
ここでは、プラスカイならではの魅力を紹介します。
敷地の有効活用ができる


プラスカイをつけることで、通常の平屋と同じ間取りを、よりコンパクトな敷地内につくることができます。
平屋はどうしても土地の広さが必要になるので、敷地の有効活用ができるのは嬉しいポイントですね。
たとえば、敷地ギリギリに駐車スペースを設ける平屋プランの場合、プラスカイにして居住空間の一部を中2階に設置することで、家の幅がコンパクトになります。その分、駐車場のスペースを広くできるので、余裕を持って車を停められます。
家族のつながりを感じながらプライベートも確立
プラスカイの中2階は、家族の気配を感じながらも、ほどよい距離感を保てる空間です。
たとえばリビングから「ご飯よ」と声をかければ、上で過ごす家族に声が届く。家族とのつながりを感じながら自分たちのプライベートスペースも保てるような、ゆるやかな分離が叶います。
平屋以上の開放感
平屋は上下移動が少なく、暮らしやすさの面で人気がありますが、空間の「縦方向の広がり」はどうしても制限されます。
プラスカイはその弱点をカバーし、勾配天井や吹き抜けを活かした立体的な空間設計によって、大きな開放感を得られます。



平屋の落ち着きと2階建ての開放感の両方を味わえるのは、プラスカイだからこそです。
住友林業プラスカイの坪単価
プラスカイの価格帯は、吹き抜けや勾配天井など、開放感を生む設計が加わるため、建築費としては2階建に約5〜10%ほど上乗せした金額が相場価格になります。
| 建物の坪数 | 坪単価 | 建物本体価格相場 |
| 20坪 | 139 | 2,657万〜2,783万円 |
| 25坪 | 129 | 3,090万〜3,237万円 |
| 30坪 | 121 | 3,465万〜3,630万円 |
| 35坪 | 116 | 3,880万〜4,065万円 |
| 40坪 | 111 | 4,250万〜4,452万円 |
選ぶ仕様や外構・太陽光パネルの有無などによっても価格は変動するので、あくまで予算を計算する目安として把握しておいてください。
住友林業プラスカイの間取り例
プラスカイは、中2階をどう活かすかによって暮らし方の幅がぐっと広がります。
ここでは、実際のプランをもとにしたプラスカイの間取り例を3つご紹介します。
セカンドリビングがある2LDK


こちらは階段を上がった先のホールをセカンドリビングとした、2LDKのプラスカイ平屋の間取りです。
プラスカイフロアの窓際にはデスクも設けられており、作業や読書スペースとしても活用できます。
1階は回遊動線を意識した配置になっており、家事効率を高められる設計です。
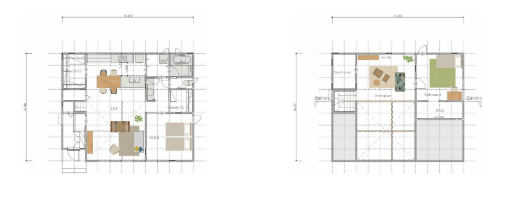
2階をパブリックスペースとしている3LDK


こちらはプラスカイエリアを、作業スペース・ライブラリースペースとして用いた事例です。1階は生活のエリア、中2階はワークエリアとして活用できるため、生活にメリハリが生まれます。
また、収納力の高さも注目ポイント!プラスカイには大容量のストックルームを設けながら、1階にもファミリークロークが備えられているため、物の整頓が捗る、すっきりとした暮らしを実現できる設計です。
コンパクトな敷地で実現した2LDK


こちらは、限られた土地でもゆとりある暮らしを叶えたコンパクト設計の2LDK。住友林業の企画住宅「プレマール」シリーズでも実現できるプランで、ムダのない動線とバランスの取れた収納計画が特徴です。
敷地条件を感じさせないほどの開放感があり、都市部での平屋プラスアルファの暮らしにも最適です。
住友林業プラスカイが見学できるモデルハウス・展示場
プラスカイの開放感や立体的な間取りは、写真だけでは伝わりにくいもの。プラスカイの設置を検討している方は、ぜひ、実際の空間を確認してみることをおすすめします。



ここでは、プラスカイを採用したモデルハウスの中から、見どころのある展示場をいくつか紹介します。
大宮展示場


プラスカイの展示場と言えばここ!大宮展示場のプラスカイ平屋は、リビングを一段下げることで、より天井の高さを感じられる空間構成になっています。
間接照明に照らされた化粧梁が印象的で、木の質感を引き立てる上質な雰囲気も、ぜひ取り入れたいポイントです。
参考:住友林業「大宮展示場」
豊橋南第二展示場


豊橋南第二展示場はプラスカイフロアを家族共有のパブリックスペースとして設計。動線設計にもこだわり、家事や生活のしやすさを両立しています。
参考:住友林業「豊橋南第二展示場」
RSK第二展示場


RSK第二展示場は木の温もりを存分に感じられるデザインと、多彩な使い方ができる間取りが特徴です。
住友林業らしい自然素材の心地よさを体感できる展示場ですので、こちらもぜひチェックしておきたいところ!
参考:住友林業「RSK第二展示場」
住友林業プラスカイのデメリット


どんなに魅力的なプランにも、知っておきたい注意点があります。
プラスカイも例外ではなく、構造やデザインの特徴から生じるコスト面・敷地面の条件を理解しておくことが大切です。
ここでは、建てる前に確認しておきたいプラスカイのポイントを紹介します。
同じ床面積なら総2階の方が安い
プラスカイは、平屋と同じく1階の構造体や基礎部分を大きく設けなくてはなりません。加えて、大きく設けた基礎・構造の上に中2階を設けるため、総2階住宅と比べると建築コストが高くなる傾向があります。
とはいえ、その分だけデザイン性や開放感、居住性に優れており、価格以上の満足度が期待できます。



コスト面を理解した上で自分たちの暮らしに合うかを考えることが大切です。
土地にもある程度の広さが必要
プラスカイはあくまで平屋+アルファの空間のため、土地面積は平屋が十分建てられるくらいの広さが必要です。
都心部だと広い土地を見つけるのが難しく、見つかったとしても高額で予算を超えてしまう可能性があります。
のびのびとゆったりとしたプラスカイ平屋を検討する場合は、郊外のエリアも立地の候補に入れた方が良さそうです。
吹き抜けの仕上げでオプション費用が上がることも
プラスカイの大きな魅力のひとつである吹き抜け天井。せっかく開放的な空間をつくるなら、吹き抜け空間はおしゃれに演出したくなるものですが、間接照明や梁の見せ方などでオプション費用が上がることもあります。
とはいえ、ここは家の印象を左右する部分。予算を抑えて開放感と華やかさを実現する方法を、設計士としっかり相談したほうが良いでしょう。
住友林業のプラスカイが向いている人


プラスカイは、平屋での暮らしの質を高めたい人にこそ向いているプランです。
ここでは、特におすすめできるタイプを紹介します。
平屋にプラスアルファ空間が欲しい人
平屋のつながりある間取りを実現しながら、もう少し収納や趣味の空間など、個人的なスペースを設けたい方にとって、プラスカイはぴったりです。
中2階を設けることで、平屋の暮らしに新しい楽しみをプラスできます。
広いリビングをつくりたい人
プラスカイの平屋は、勾配天井と吹き抜けを設ける設計です。
これらの広がりを活かすことで、開放的な大空間リビングをつくれます。また、プラスカイ空間をセカンドリビングとして使うことで、家族が集まるリビング空間の使い方も、より豊かになります。
土地面積があまり確保できていない人
プラスカイは、限られた敷地を立体的に活用したい方にもおすすめです。
たとえば、30坪の土地に平屋を建てる場合、建築面積は16坪ほどが限界です。16坪の平屋だと、14畳ほどのリビングに個室は2つ、各部屋にクローゼットなどが一般的な間取りです。



しかしプラスカイを設けることで、中2階部分に収納やもう1つ個室を設けることができます。
2階建てよりも家族とのつながりを感じられながら、平屋ならではの開放感も損なわない暮らし方ができるため、「平屋らしい暮らしがしたいけど、土地が狭い!」と悩む方にも、プラスカイはおすすめです。
「プラスカイもいいけど、他のハウスメーカーはどんな中2階付きの平屋を建てられるんだろう…」
この記事をここまで読んだ方の中には、そんな疑問がちらりと浮かぶ方もいるのではないでしょうか。
以下のサービスを活用することで、そんな疑問を解消できます。
平屋が得意なハウスメーカーのカタログを一括請求できるため、他社と住友林業の平屋の違いをサクッと把握することが可能です。カタログを比較することで住友林業の良さを再確認し、住友林業での家づくりへの決意が固まる方もいらっしゃいます。
利用は無料ですので、ぜひお気軽に試してみてください。
住友林業のプラスカイ導入で後悔しないためのポイント


プラスカイは自由度が高い分、設計段階での選択肢も多くなります。後悔しないためには、「何を優先したいか」を最初に明確にしておくことが大切です。
たとえば…
- 開放感を重視したい!→吹き抜けの位置や窓の配置を慎重に検討する
- コストを抑えたい!→構造はシンプルにまとめオプションも絞る
といったように、優先順位を決めて設計士と共有しておくと安心です。
また、実際にプラスカイの展示場を訪れて、高さ・光の入り方・音の響き方などを体感しておくのも、後悔を防ぐために欠かせないポイント!図面ではわからない空間の心地よさを知ることで、より納得のいく家づくりができます。
まとめ|プラスカイなら平屋の暮らしがより快適に!
住友林業のプラスカイは、平屋のような落ち着きを保ちながら、縦の空間を上手に活かせるプランです。
大屋根や勾配天井が生み出す開放感、家族がゆるやかにつながる中2階の距離感。どれも、暮らしの中で「心地よさ」を感じられる工夫にあふれています。



コストや敷地条件など、検討すべき点はありますが、事前に理解して設計すれば、きっと満足度の高い住まいになります。
平屋の良さをそのままに、もう一歩上の快適さを求めたい方はぜひプラスカイを検討してみてください。
また、これから住友林業で家づくりを考えている方は、オーナー紹介制度の利用がおすすめです。
紹介制度を用いることで、契約時に割引や特典が受けられ、費用負担をぐんと抑えて家づくりを始められます。さらに、「健太郎のおうち」を通した紹介なら、当サイト&住友林業の家の現オーナー兼、住宅業界経験25年以上の僕「健太郎」が、家づくりや土地選び、費用面に関するアドバイスなども行います。
「まだ住友林業で家を建てるかどうか決めてない…」という方でも、OKです!気軽に、ご連絡ください。
LINE登録で無料プレゼントをGET!


CONTACT
住友林業の紹介制度について聞きたい方や、家づくりで気になることがある方は、お気軽にLINEまたはお問い合わせフォームからご連絡ください。



